Building Control Drawings

Detailed Floor Plan
Detailed Section
Thermal Specification Details Sections
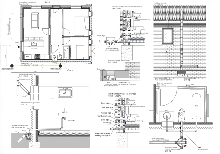
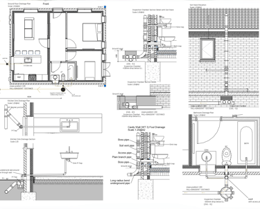
Drainage Details Layout Plan and Sections
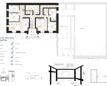
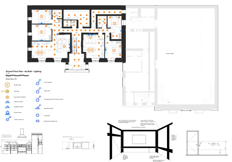
Electrical Details Layout Plan and Sections
Bespoke Details
Visualisation of structural engineer`s details